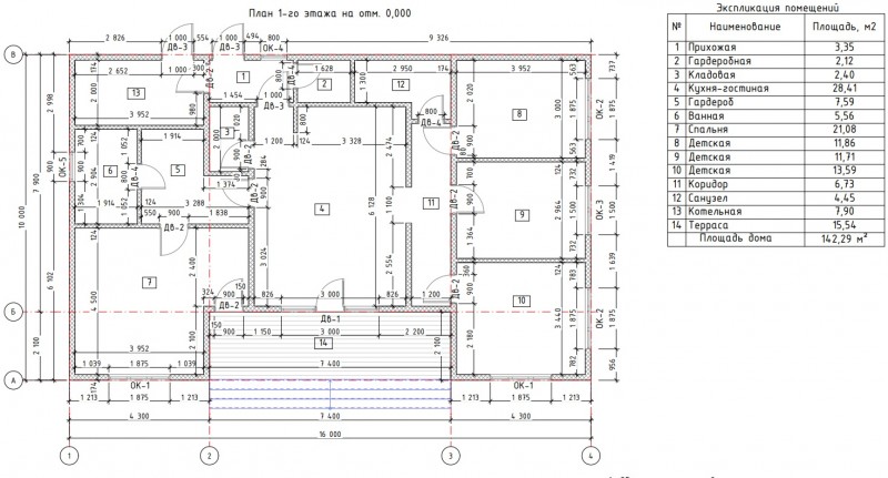
Планировочные решения:
Дополнительные помещения:
Архитектурные особенности:
Преимущества технологии СИП:
«Этерна» — это дом для жизни, где каждая деталь продумана: от удобных гардеробных до просторной террасы, которая становится продолжением интерьера. Проект идеален для семьи, ценящей современный дизайн, практичность и уют. Благодаря СИП-технологии вы получите надежное жилье, готовое к заселению в кратчайшие сроки.
Дополнительные опции:
Стоимость домокомплекта 3412000 рублей
Выбор местоположения
Мы свяжемся с Вами в течение дня.